CAWD Logo
  

      Designing together for the future
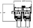
Windows Pic
Click Here to subscribe to the Champion Minute Newsletter to receive updates about our company/products.

Sliding Windows

Series 7500 - Sliding


Technical Details Features Testing Results
Horizontal Slider Stainless Steel Rollers HS-AW65 Rating
4 1/8" Frame 12 lb Removable Sill Standard Operating Force: 23lbf
1" Insulating Glass Continuous Latch/Lock Rail Air Infiltration: 0.17 cfm2
HS-AW65 Rating Beveled Sashes Water Pressure: 12.12 PSF
HS-HC65 Rating Curved Structural Handle Load Deflection: 65.20 PSF
2 1/2" Flange Head/Jamb/Sill Options Metal Sash Stops w/ Rubber Bumpers Load Structural: 97.81 PSF
Cut Size on W&H: 1/8" Dual Seal Double Strength Glass Entry Resistance: Grade 10
Minimum Size: 21" x 12" Fully Thermally-Broken Components  
Maximum 2-Lite Test Size: 99" x 79" Corresponding Fixed Unit: 7510  
Click Image to Enlarge:
Head Left Jamb Interlock Right Jamb Sill
Head Left Jamb Interlock Right Jamb Sill
Download Materials for 7500: